合景裝飾20年大品牌,精耕辦公裝修市場,提供規劃設計、采購、施工等一站式服務,得到客戶“高回頭率 高滿意度”的肯定,曾獲得CCTV2頒發的“優秀設計團隊”獎
2019-07-15
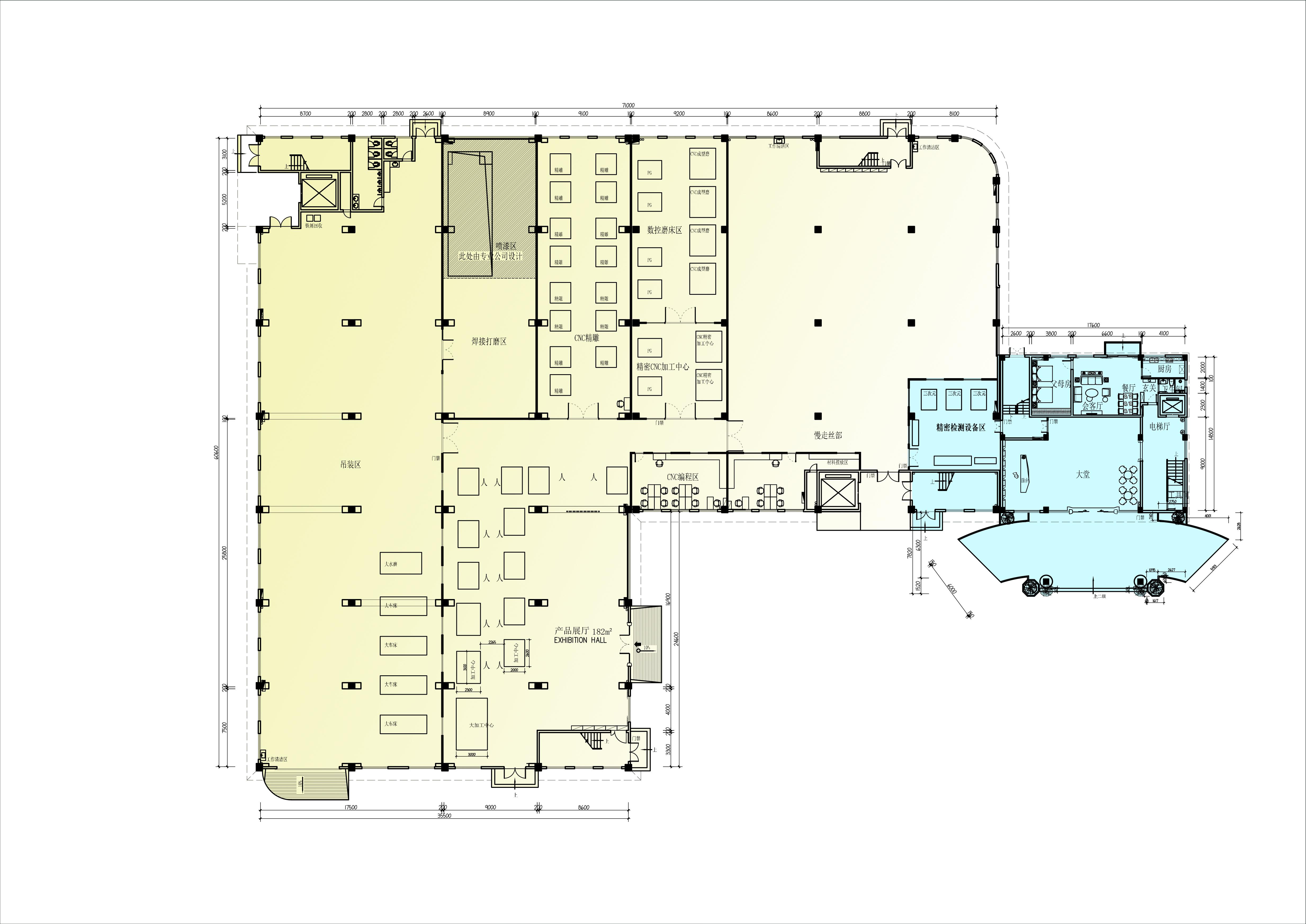
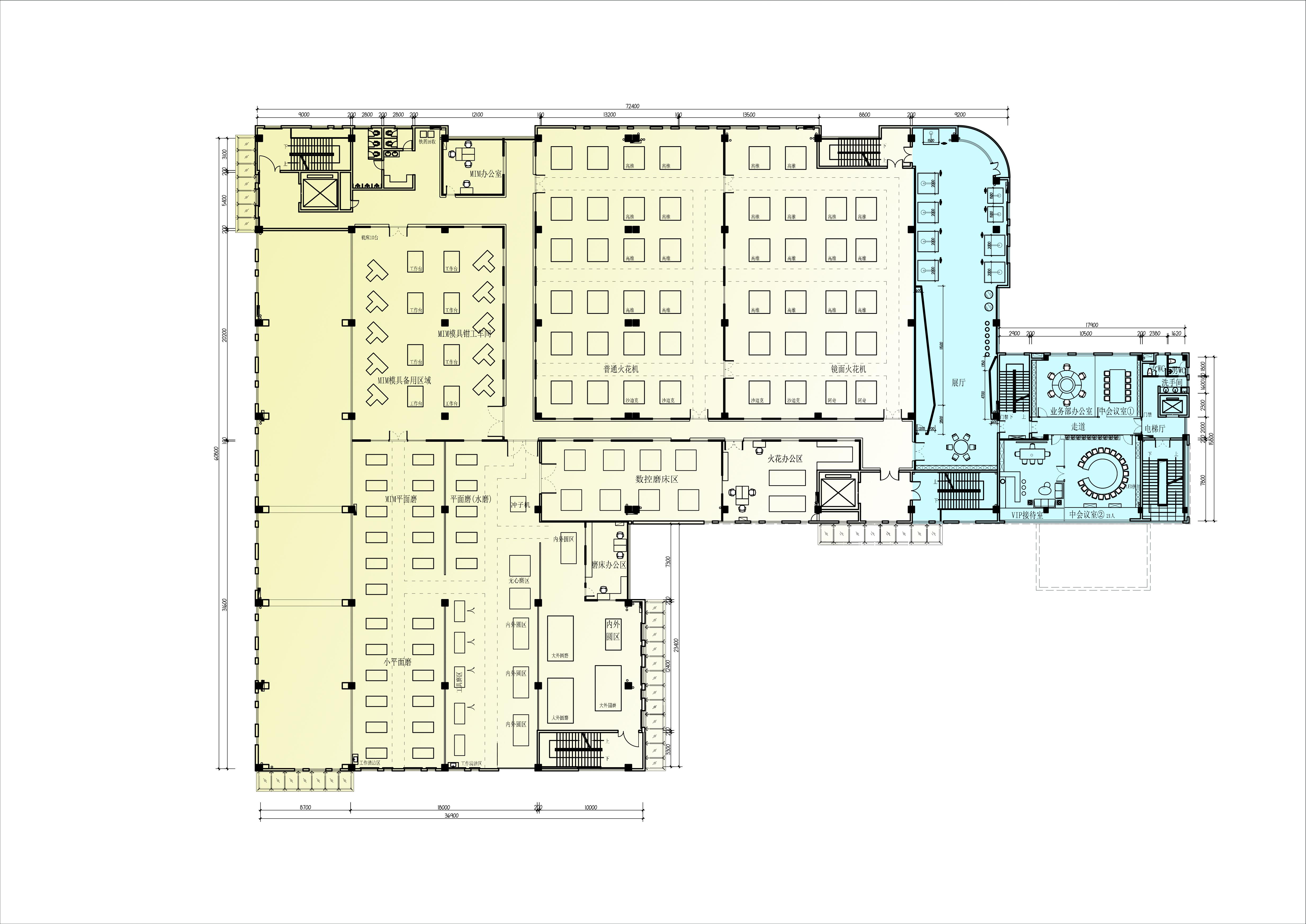
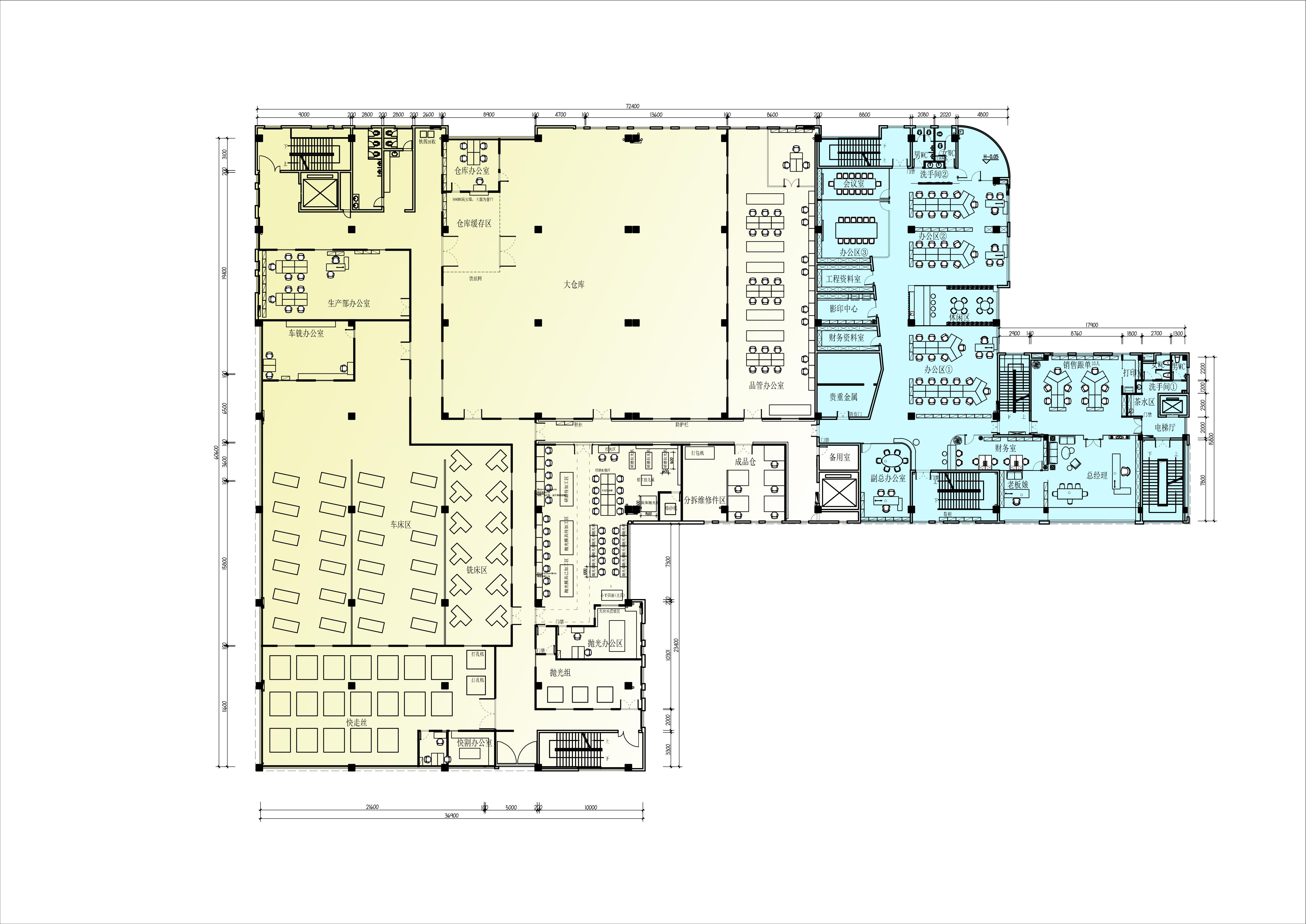
合景裝飾合作單位東莞東坑鑫信精機有限公司主要從事開發、設計、加工、產銷:機器人及工業自動化設備、模具、機械電子設備、機械零部件;計算機軟件的技術開發及銷售;機械設備、機電設備、工業機器人及數控機床的生產和維修。












OTHER